Thiết kế nhà phố 3 tầng mái thái

Thiết kế nhà phố 3 tầng mái thái

Thiết kế nhà phố 3 tầng mái thái đẹp, nổi bật
Thiết kế nhà phố 3 tầng mái thái đẹp, nổi bật

Xu hướng thiết kế nhà phố 3 tầng mái thái ngày càng được ưa chuộng bởi vẻ đẹp hiện đại, sang trọng và tinh tế. Kiến trúc của ngôi nhà vuông vắn, khỏe khoắn, mặt tiền thiết kế dạng giật cấp ấn tượng kết hợp với mái thái mềm mại mang lại không gian sống thẩm mỹ, nổi bật nhất.

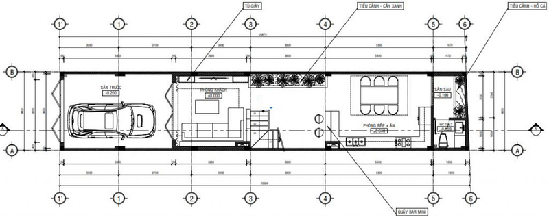
Với kiểu nhà ống có chiều sâu lý tưởng nên các KTS đã chừa lại 1 khoảng diện tích phía trước làm sân nhà. Đây vừa là nơi để xe, nơi vui chơi cho trẻ em vừa giúp không gian trở nên rộng rãi, thông thoáng hơn.

Mặt bằng công năng tầng 1
Mặt bằng công năng tầng 1

Tầng 1 bao gồm khu vực sân trước để xe, tiếp đến là phòng khách, khu vực tiểu cảnh được đặt dưới chân cầu thang làm tăng tính thẩm mỹ cho không gian và tạo độ thông thoáng cho căn nhà. Phòng bếp và phòng ăn được đặt cuối cùng và 1 khoảng sân sau giúp thoát mùi hiệu quả.

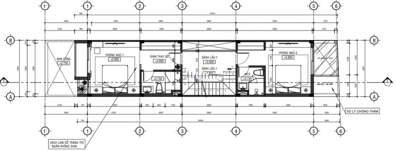
Mặt bằng công năng tầng 2
Mặt bằng công năng tầng 2

Không gian tầng 2 được phân chia thành 2 phòng ngủ khép kín đầy đủ tiện nghi. Đây là không gian sinh hoạt riêng tư, nơi nghỉ ngơi phù hợp cho các thành viên trong gia đình. Khu vực giếng trời giữa nhà cạnh cầu thang giúp căn nhà luôn thông thoáng, mát mẻ và dễ chịu.

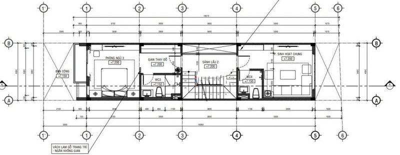
Mặt bằng công năng tầng 3
Mặt bằng công năng tầng 3

Tầng 3 có 1 phòng ngủ phụ dành cho khách với đầy đủ công năng như WC khép kín, có phòng thay đồ; 1 phòng sinh hoạt chung, WC và khu vực ban công rộng rãi.

  |   Design by SubiWeb.com

0981349222
Liên hệ qua Zalo
Chát Facebook