Nhà ống 3 tầng hiện đại

Nhà ống 3 tầng hiện đại 

Mẫu nhà ống 3 tầng hiện đại, sang trọng với mặt tiền được thiết kế ấn tượng
Mẫu nhà ống 3 tầng hiện đại, sang trọng với mặt tiền được thiết kế ấn tượng

Đây chắc chắn là mẫu thiết kế nhà phố 3 tầng khiến bất cứ ai cũng khó lòng rời mắt ngay từ cái nhìn đầu tiên. Với lối thiết kế hiện đại, các KTS đã khéo léo bố trí được mặt bằng ngôi nhà cực kỳ ấn tượng với không gian xanh mát và các tấm lam chắn họa tiết bắt mắt. Cách thiết kế này giúp ngôi nhà trở nên thông thoáng, mát mẻ và có tính thẩm mỹ hơn.

Mẫu nhà phố 3 tầng mái bằng với thiết kế hình khối khỏe khoắn, mạnh mẽ mang đến vẻ đẹp hiện đại, phóng khoáng, phù hợp với gia chủ trẻ tuổi. 

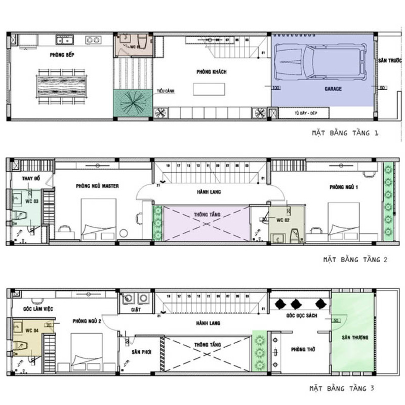
Bản thiết kế kiến trúc nhà ống 3 tầng hiện đại
Bản thiết kế kiến trúc nhà ống 3 tầng hiện đại

Với mẫu thiết kế này, các KTS chú trọng tới các khu vực công năng đặc biệt, đáp ứng đầy đủ nhu cầu sinh sống tiện nghi, thoải mái cho gia đình có 5 – 6 thành viên.

  • Tầng 1: Phía ngoài là gara để ô tô, xe máy. Tiếp đến là phòng khách rộng, WC và phòng bếp kết hợp với phòng ăn. Ở giữa nhà là khu vực tiểu cảnh cây xanh giúp tăng tính thẩm mỹ cho không gian.
  • Tầng 2: Tầng 2 bao gồm 2 phòng ngủ lớn khép kín, đầy đủ tiện nghi được ngăn cách bằng cầu thang và khoảng thông tầng để đảm bảo sự riêng tư khi nghỉ ngơi.
  • Tầng 3: Có 1 phòng ngủ kết hợp với phòng làm việc và WC khép kín. Phía ngoài ngôi nhà là phòng đọc sách, phòng thờ và sân phơi. Khoảng sân thượng thông thoáng được dùng để trồng nhiều cây xanh.

  |   Design by SubiWeb.com

0981349222
Liên hệ qua Zalo
Chát Facebook