Mẫu nhà phố đẹp 3 tầng 1 tum

Mẫu nhà phố đẹp 3 tầng 1 tum 

Mẫu thiết kế nhà phố 3 tầng 1 tum tối ưu công năng sử dụng
Mẫu thiết kế nhà phố 3 tầng 1 tum tối ưu công năng sử dụng

Mẫu thiết kế nhà phố 3 tầng 1 tum theo phong cách hiện đại vừa tối ưu được công năng sử dụng, tiết kiệm chi phí xây dựng mà còn đảm bảo tính thẩm mỹ cao. Mặt tiền của ngôi nhà được ốp tầng 1 bằng đá granite trắng cao cấp, tầng 2-3 sử dụng gạch inax xám có vân độc đáo mang đến vẻ đẹp khỏe khoắn, hiện đại, thu hút nhất.

Ngôi nhà được thiết kế 2 cửa ra vào phía trước gồm 1 cửa cuốn cho xe và cửa ngách dành cho các thành viên trong gia đình để đi lại thuận tiện hơn. Ban công mỗi tầng và tầng tum đều được bố trí không gian xanh thông thoáng.

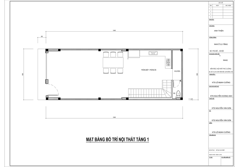
Mặt bằng công năng tầng 1
Mặt bằng công năng tầng 1

Lối thiết kế ngôi nhà này khá đơn giản, chú trọng vào phần công năng cho khách hàng nên tầng 1 được bố trí với khu vực sảnh để xe, phòng ăn và bếp rộng rãi phù hợp cho những buổi gặp mặt bạn bè, họ hàng.

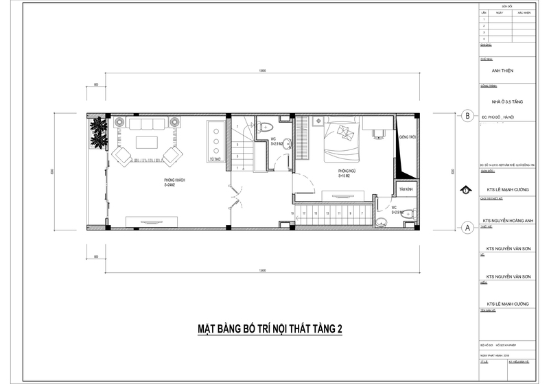
Mặt bằng công năng tầng 2
Mặt bằng công năng tầng 2

Tầng 2 có phòng khách rộng rãi kết hợp với khu vực thờ cúng trang nghiêm. Phía trước là ban công lớn giúp căn phòng luôn thông thoáng, mát mẻ, tận dụng được ánh sáng tự nhiên. Tầng 2 có 1 phòng ngủ khép kín, WC, khu vực giếng trời cạnh cầu thang.

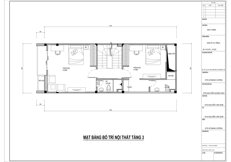
Mặt bằng công năng tầng 3
Mặt bằng công năng tầng 3

Tầng 3 có 2 phòng ngủ khép kín đầy đủ tiện nghi, diện tích rộng rãi mang lại cảm giác thoải mái nhất khi nghỉ ngơi. Nhà vệ sinh chung được đặt ở khu vực cầu thang vừa đảm bảo sự gọn gàng sạch sẽ vừa thuận tiện khi sử dụng.

  |   Design by SubiWeb.com

0981349222
Liên hệ qua Zalo
Chát Facebook